16815 Jefferson AvenueGrosse Pointe City, MI 48230




Mortgage Calculator
Monthly Payment (Est.)
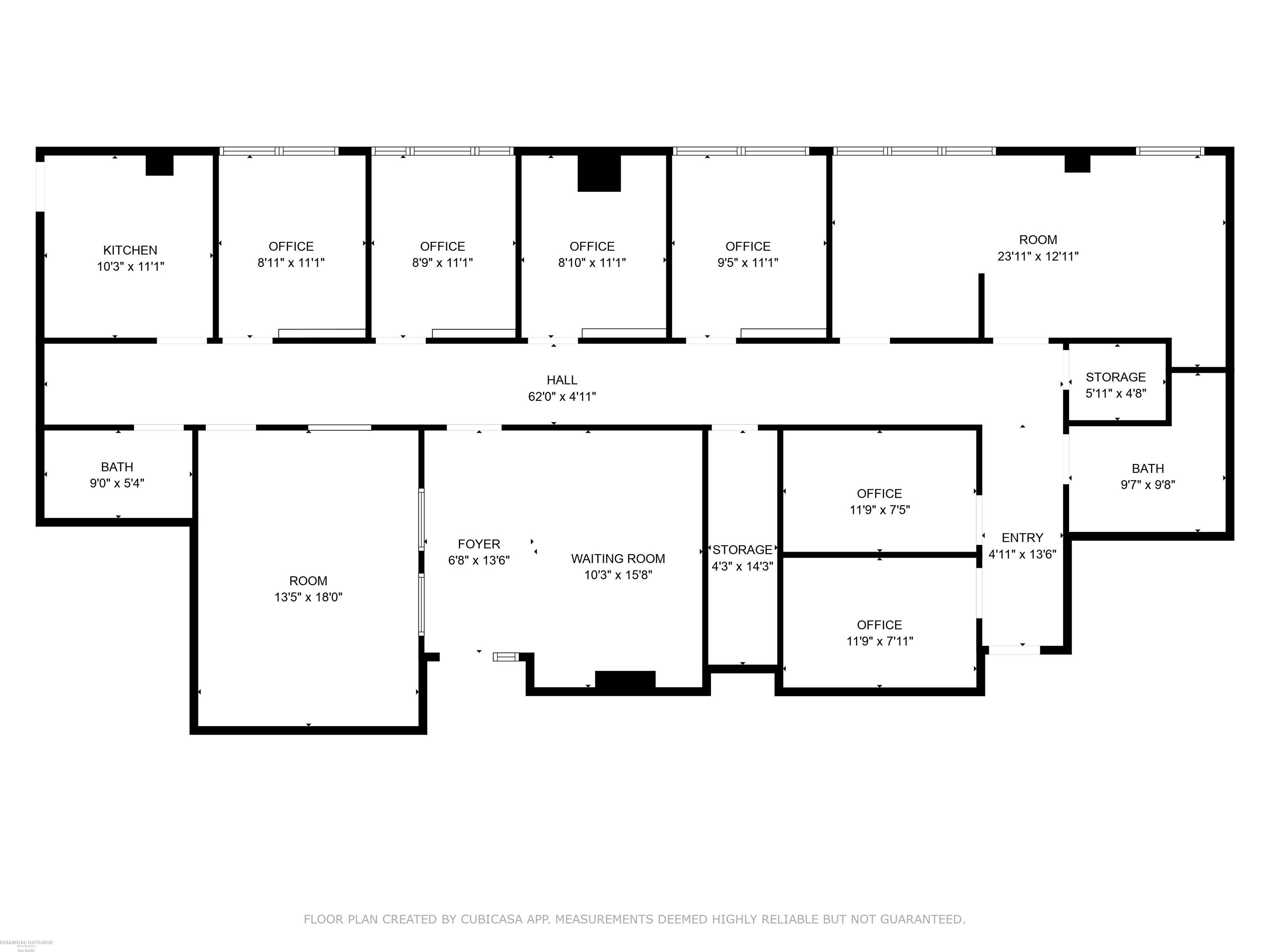
$46LEASE: Now available for lease is a spacious and well-appointed professional office suite located in the highly desirable Grosse Pointe community, directly within the Corewell Health Beaumont Grosse Pointe Hospital Care Center. This versatile medical or general office space offers a thoughtful layout ideal for healthcare providers, wellness practitioners, or professional services. Total of 9 Offices. 2 Large Multi-Purpose Rooms, Welcoming Reception & Waiting Area, Kitchen/Breakroom: Fully enclosed kitchen space for staff use, 3 Restrooms for staff and client convenience, 2 Storage Rooms to accommodate supplies and equipment. Prime location on East Jefferson Ave in the heart of Grosse Pointe. Easy access to major roadways and public transportation. Situated within a well-established healthcare facility, offering high visibility and potential referral network opportunities. Must be a Corewell affiliate.
| 2 months ago | Listing updated with changes from the MLS® | |
| 2 months ago | Status changed to Active | |
| 2 months ago | Listing first seen on site |
IDX provided courtesy of Realcomp II Ltd. via MiRealSource. Copyright © 2025 Realcomp II Ltd. Shareholders.
IDX information is provided exclusively for consumers' personal, non-commercial use and may not be used for any purpose other than to identify prospective properties consumers may be interested in purchasing and that the data is deemed reliable but not guaranteed accurate by the MLS.

Did you know? You can invite friends and family to your search. They can join your search, rate and discuss listings with you.