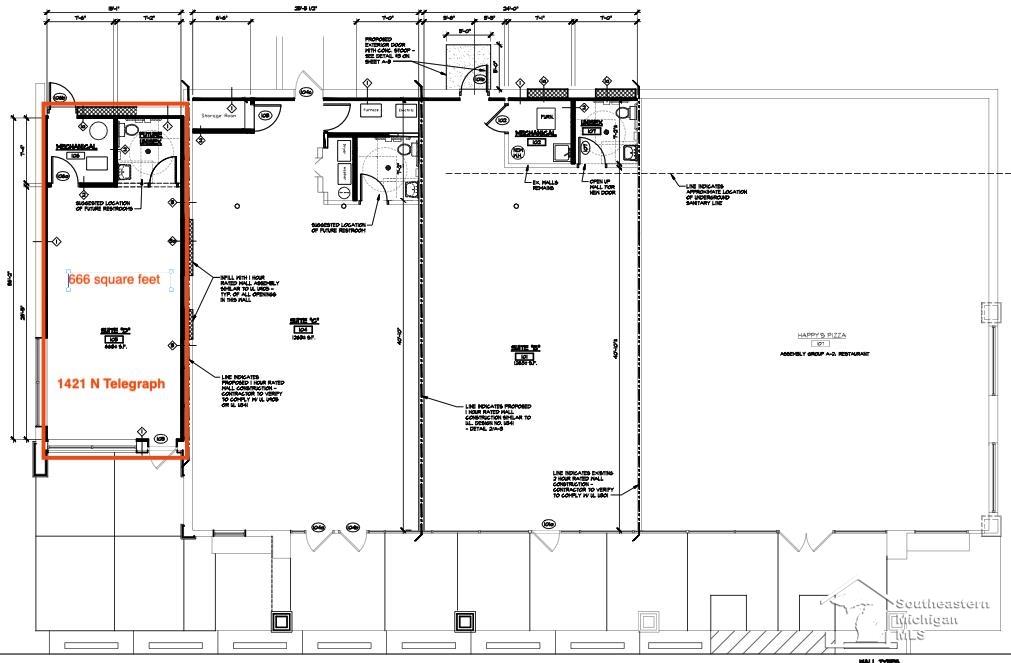
1421 N Telegraph RoadFrenchtown Township, MI 48162


Mortgage Calculator
Monthly Payment (Est.)
$0Renovated shopping center with high visibility and a traffic count of 30,000 vehicles per day, located on US-24 just south of Stewart Rd. This property is strategically positioned in a prime location, central to a diverse range of popular franchises and national retailers. These include well-known names such as McDonald's, Wendy's, Burger King, Arby's, Big Lots, Harbor Freight, Culver's, Dairy Queen, Taco Bell, Chipotle, Qdoba, Meijer, and many others. This is an excellent opportunity for businesses looking to establish a presence in a high-traffic area with a strong consumer base. This is a triple net lease. Taxes to be determined.
| 6 months ago | Listing first seen on site | |
| 6 months ago | Listing updated with changes from the MLS® |
IDX provided courtesy of Realcomp II Ltd. via SoutheasternBorderAssociationofREALTORS. Copyright © 2026 Realcomp II Ltd. Shareholders.
IDX information is provided exclusively for consumers' personal, non-commercial use and may not be used for any purpose other than to identify prospective properties consumers may be interested in purchasing and that the data is deemed reliable but not guaranteed accurate by the MLS.

Did you know? You can invite friends and family to your search. They can join your search, rate and discuss listings with you.