1500 Kooiman Avenue 10Grand Haven City, MI 49417

Mortgage Calculator
Monthly Payment (Est.)
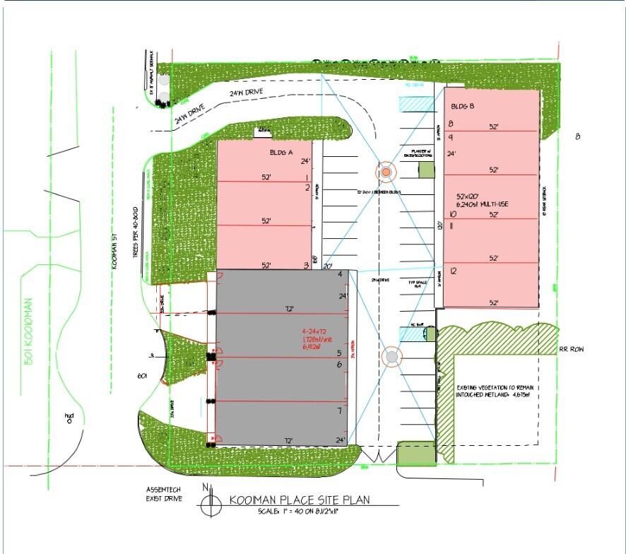
$1,259Welcome to Kooiman Place - a modern, flexible development designed to meet the needs of entrepreneurs, small business owners, and professionals looking for a unique space to grow. Currently under development, these innovative units offer the perfect blend of workspace and storage in one thoughtfully designed location. Commercial spaces are available in 1,248 sq ft and 1,728 sq ft options, giving you the flexibility to choose the size that fits your business. Features include Schlage smart entry systems, mezzanine options for added office or storage space, Anderson sliding doors and windows for natural light, and versatile layouts that adapt to a variety of uses. Each unit also includes a 14' x 16' insulated overhead door with an additional 3' entry door, making them ideal for studios, workshops, service businesses, or professional offices. Generous allowances for finishes and multiple upgrade options allow you to customize the space to meet your business needs. Perfectly located
| 6 months ago | Listing updated with changes from the MLS® | |
| 6 months ago | Price changed to $276,000 | |
| 6 months ago | Listing first seen on site |
IDX provided courtesy of Realcomp II Ltd. via WestMichiganLakeshoreAssociationofREALTORS. Copyright © 2026 Realcomp II Ltd. Shareholders.
IDX information is provided exclusively for consumers' personal, non-commercial use and may not be used for any purpose other than to identify prospective properties consumers may be interested in purchasing and that the data is deemed reliable but not guaranteed accurate by the MLS.

Did you know? You can invite friends and family to your search. They can join your search, rate and discuss listings with you.